佐藤建設株式会社

ベル・ホーム

高気密高断熱・高耐震の住まいを洗練されたデザインで提供するハウスブランドです。
建築家のデザイン力と標準以上の高い性能、質の高いインテリアの設えは、優れた感性を持つファミリーに向け、完成度の高い家創りをご提案いたします。

ABOUT

ベル・ホーム
住宅展示場 問屋町テラス
岡山県岡山市北区問屋町15-101
モデルハウス名 ベル・ホーム
定休日 水曜日
延床面積 112.61㎡(1F/57.96㎡・2F/54.65㎡)
工法 在来工法
特徴 4人家族を想定して建てられた、自然を感じられるリアルサイズのモデルハウスです。
展示場では珍しく、庭と玄関までのアプローチも備えた実棟です。
棟から二枚の屋根をかけた切妻屋根とも呼ばれる三角形の家。
黒いシックな外観い庭の緑が映えるデザイン。
室内はダークトーンで統一し、アイアンを使った家具とインテリアで、全体的に落ち着いた空間になっています。
吹き抜けや窓の位置を工夫したので、自然光が室内に降り注ぎ、落ち着いた空間ながらも明るい室内を実現しました。

360°

写真をクリックすると、360°部屋を見渡すことが出来ます。

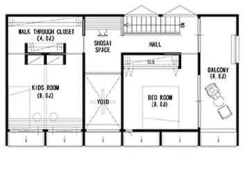
HOUSE PLAN

  • 1F

    1F
  • 2F

    2F

ご興味がある場合は、下記のボタンを押して資料請求をしてください。

資料請求

RESERVE

モデルハウス見学の予約をご希望の場合は、下記フォームにご入力ください。

※モデルハウス見学予約フォームからの送信が完了しても、ご予約の確定ではありません。
お申し込みの出展住宅会社より改めてご連絡をさせて頂きます。
お名前*
お名前(ふりがな)*
年齢*
郵便番号*
住所*
電話番号*
メールアドレス*
職業*
※ご予約は本日より翌日以降からの受付となります。
※毎週水曜日は定休日となります。
※当日のご予約はお電話にてお問合せください。
第一希望 見学日時* 日程

時間
第二希望 見学日時* 日程

時間
見学人数*
備考
個人情報の取り扱い*

当事業体のプライバシーポリシーについて同意される方のみ送信できます。

資料請求 見学予約
トップに戻る